Skip to main content
Advertisement
Advertisement

Singapore

Stepmother of 5-year-old girl who was beaten to death by father gets jail for child abuse

Ayeesha and her brother were confined naked in the toilet for months before her death, malnourished and eating their own faeces.

Stepmother of 5-year-old girl who was beaten to death by father gets jail for child abuse

Ayeesha and her brother were confined in two naughty corners, the first barricaded off by a bookshelf and the second in a toilet. (Photos: Court documents)

New: You can now listen to articles.

This audio is generated by an AI tool.

13 Mar 2026 12:50PM (Updated: 13 Mar 2026 12:52PM)

Warning: This story contains details of abuse which are distressing.

SINGAPORE: The stepmother of a severely malnourished five-year-old girl who was beaten to death by her father was sentenced to six years and three months' jail on Friday (Mar 13) for joining in the abuse of the girl and her younger brother.

In sentencing, the judge said the case involves ill-treatment of especially vulnerable victims which stretched from hours to days to weeks to months.

"It is painfully ironic now to seek mercy when so little was shown to those two children," said District Judge Eugene Teo.

The 35-year-old Singaporean woman, who had her own children whom she looked after while the two kids were being abused, was dressed in black and remained expressionless at this statement.

She pleaded guilty to three charges which include ill treatment of a child and giving false information to the police. Another three charges were taken into consideration.

The girl, named as Ayeesha by the High Court so that "society may remember her", had been confined naked in a toilet with her younger brother for almost 10 months before her death, as part of several "naughty corners" devised by the offenders. 

The children suffered almost two years of abuse and neglect, eating their own faeces and parts of a mattress out of hunger. They were not taken to school, with their father giving various lies to the authorities about their attendance, while the stepmother's own children went.

Ayeesha died of a head injury in August 2017 after her stepmother complained about the children to their father, and the father responded by slapping the girl repeatedly such that her head tilted back awkwardly.

He carried out a second round of assault in the toilet where the naked children were confined after the stepmother complained about them again, this time punching both. He administered additional kicks, stamps and slaps on the girl, who later died in the toilet.

After the couple realised that Ayeesha was dead, they planned how to cover up the death. As part of the plan, the stepmother filed a police report claiming her husband had beaten and raped her, a lie she continued to perpetuate even in her High Court testimony during her husband's trial.

The father, then a 45-year-old man, was sentenced to life imprisonment last year, after failing in an appeal to reduce his 35-year jail term.

A gag order protecting the surviving brother, who is a year younger than Ayeesha, means the offenders cannot be named. The district court on Friday maintained the High Court's practice of lifting part of the gag order in order to allow publication of Ayeesha's first name. 

Ayeesha's brother was also seen by doctors after the case was uncovered and was found to be severely malnourished, dehydrated and with a weight lower than the third percentile of kids his age.

He was also found to be suffering from global developmental delay with social deprivation as a factor, was socially withdrawn and was unable to speak or stand on his own. 

Videos previously shown in court showed Ayeesha's brother looking on quietly while a fearful Ayeesha was being assaulted. In another clip, the kids appeared expressionless and listless, moving only when their stepmother told them to. 

The prosecution sought five to seven years' jail for the stepmother, calling her acts "inhumane" and "cruel", while acknowledging that she had pleaded guilty while her co-accused had claimed trial.

Deputy Public Prosecutor Maximilian Chew said that the extreme physical, emotional and psychological suffering the two children endured cannot be understated.

"A toilet is not a place for any human being to live in, let alone a young child. This was the place that the accused and the co-accused relieved themselves and showered in," he said.

"It was often wet and dirty, with faeces on the wall, and yet the two children were forced to live in that small and unsanitary space."

He said the numerous wounds and abrasions all over Ayeesha's body, including the patchy red and wet scald-like marks between and around her toes, illustrated the unsanitary conditions.

Her brother also had skin infections such as scabies and lower limb cellulitis, and his social deprivation resulted in global developmental delay.

The stepmother was represented by Mr Ashwin Ganapathy from the Public Defender's Office (PDO), who sought five years' jail.

Mr Ganapathy said that despite the vastness of the English language, he found it difficult to find the words to describe the tragedy before the court today.

He said a young life has been lost, and another has suffered great harm and other major psychological issues.

He said he agreed with the prosecution that the sentences must be stiff and send a message.

Mr Ganapathy said the PDO had carefully considered all the factors in suggesting a sentence that should not be seen as "lenient" but commensurate with his client's overall culpability.

He said the biological father of the children was the main perpetrator who ultimately had care of the two children, and his client's culpability must be assessed within the "proper hierarchy of duty and trust".

Five years would be an adequate sentence, he said.

In sentencing, Judge Teo said that while the court recognises that the betrayal of the father towards his own children was perhaps more deplorable, the abusive acts the stepmother participated in "remain gravely serious".

He thanked the PDO for its "measured" submissions and allowed the woman to speak to her fiance before being taken away.

BACKGROUND

Ayeesha's biological parents divorced in 2013. Ayeesha and her brother were placed in foster care by the Child Protection Service in June 2014. At around the same time, their father started living with their stepmother.

In early 2015, Ayeesha and her brother returned to the care and custody of their father and lived with the two offenders.

While their father was mainly responsible for them, their stepmother fed and showered them at times.

Their stepmother married their father on Valentine's Day in 2015. She had a daughter from a previous marriage, and later had three other children with Ayeesha's father.

After Ayeesha and her brother were returned to their father from foster care, Thye Hua Kwan - Tanjong Pagar Family Service centre continued monitoring the case to check on the two children.

The children were enrolled in a childcare centre to attend nursery sometime before March 2015, but were withdrawn by May 2015.

Their father gave various lies to case officers, including that the kids were living with the stepmother's mother, or that they were at another childcare centre.

He later stopped responding to any calls, messages or emails from case officers. When a case officer visited the flat, no one responded.

The children were initially given three meals a day consisting of bread, rice or instant noodles. But when their father started having financial difficulties in 2015, he bought fewer diapers and less food.

The two offenders reduced Ayeesha and her brother's meals to twice a day. Around this time, the children began playing with and eating their own faeces because they were hungry.

Towards the end of 2015, the offenders began hitting the children. They were then aged three and two.

In February 2016, when the stepmother returned to the flat from a period of confinement as she had given birth, she complained to her husband that Ayeesha and her brother always woke up earlier than them and often caused a mess.

They decided to create the first of several "naughty corners" to confine them. At first, the children were placed there when they misbehaved, but this became permanent - they were let out only to eat or bathe.

For around eight months from February 2016, the two children were barricaded in the first naughty corner measuring 90cm by 90cm and were given only diapers to wear.

The first naughty corner, which was barricaded off by a bookshelf. It is left ajar in this still. (Photo: Court documents)
Location of the first naughty corner as marked out by the stepmother during her then-husband's trial. (Image: Court documents)

In early October 2016, Ayeesha's father called the case officer and said he was unable to care for his children.

He asked for them to be placed in foster care as he feared he might harm them out of frustration.

The case officer informed the Ministry of Social and Family Development (MSF) and asked the father to take his kids to Thye Hua Kwan Family Service Centre the next day.

The case officer also asked him to get his neighbours or parents to help care for the children that night.

The next day, Ayeesha's father went to the family service centre alone and lied that his kids were with his mother.

The case officer suggested arranging to place the kids in foster care, but the father said he wanted to give them up for adoption.

During the process, the man lied again that the children were being cared for by his mother.  

An officer from the adoption service, Apkim Centre of Social Services (ACOSS), said the adoption process could not go ahead unless the children's biological mother also gave consent, or unless MSF helped to dispense with the need for this consent.

That same month, the two offenders shifted the naughty corner to the toilet in the kitchen. The kids were confined there for almost 10 months until Ayeesha died.

They were allowed to go out only during feeding time or when the offenders wanted to use the toilet.

The kids were kept inside naked and the toilet was often stained with their faeces.

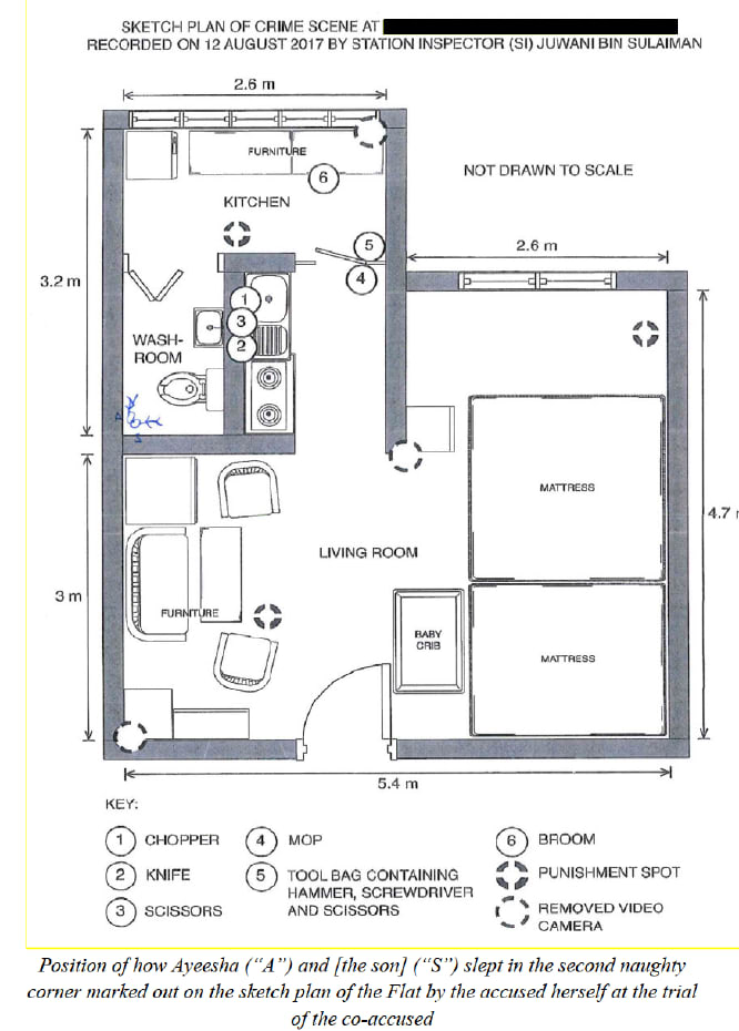
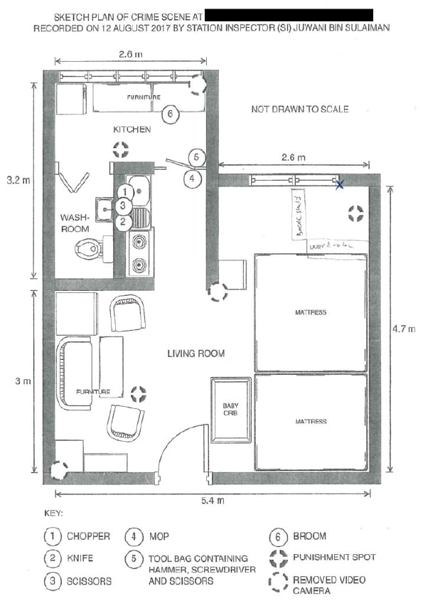
A sketch plan depicting the second naughty corner. (Image: Court documents)
The toilet in which Ayeesha and her brother were confined for almost 10 months until she died. (Photo: Court documents)

Another officer from the family service centre took over the case in early November 2016. Ayeesha's father also lied to this officer that his children were staying with his mother.

In April 2017, the new family service centre officer visited the flat. The stepmother requested to step out of the flat to talk, and did so at a void deck.

The stepmother told the case officer that ACOSS was still processing the adoption of the two children. The case officer did not see Ayeesha, her brother, or their father during this visit.

In June 2017, the stepmother informed the case officer that her husband was following up with ACOSS on the adoption and requested that the family service centre close their case.

Since May 2015 when the children's father had taken the kids to the family service centre as required, he had not taken the children along for all subsequent visits.

He often lied that they were with their relatives, and no case officer saw the bruised and skinny children since the May 2015 visit.

Court documents said that had the case officers seen the children, they would have checked them for bruises or wounds.

AYEESHA'S DEATH

On the night of Aug 10, 2017, the stepmother went to the toilet and found Ayeesha and her brother sleeping on the toilet floor.

She told them to stand up and move their legs as they had not been moving the entire day while in the toilet.

The boy followed instructions, but Ayeesha refused.

The stepmother then complained to her husband about Ayeesha's refusal.

He went to the toilet, pulled Ayeesha up by her arm and smacked her 15 to 20 times on her face before subsequently going to bed.

At about 3am on Aug 11, 2017, the stepmother complained to her husband that Ayeesha and her brother were sleeping in weird postures.

The man went to the toilet and punched Ayeesha and her brother on their backs, before kicking and stamping Ayeesha's buttocks and shoulder. He turned her around and slapped her face three to four times.

He left the flat later to take the other children he had with the stepmother to school.

Ayeesha and her brother remained in the toilet until evening. When the stepmother entered the toilet at around 6pm to 7pm on Aug 11, 2017, she asked Ayeesha to turn away so she could use the toilet bowl.

Ayeesha did not respond. The stepmother tapped the child with her right leg, tapped her arm and sprinkled water on her face, but Ayeesha did not move.

Upon realising that Ayeesha's body was very cold, the stepmother shouted for her husband. He attempted cardiopulmonary resuscitation, but the girl was dead.

The man then told his wife that he was going to clean up the evidence and told her to lie so she would not be implicated.

He carried out his plan of "forcing" his wife to have sex with him and punching her face so she could make a police report to shield herself.

After this, the pair placed Ayeesha's brother next to her lifeless body into a pram and took them to hospital where she was pronounced dead.

The stepmother filed a police report according to her plan with her husband. She claimed that he had assaulted her and that this was not the first time it had happened.

She said she would be pursuing the matter and applying for a personal protection order. However, the circumstances she described were false.

For each charge of ill-treating a child by common intention with her then-husband, the woman could have been jailed for up to four years or fined up to S$4,000 per charge.

For giving false information to a public servant, she could have been jailed for up to a year, fined up to S$5,000, or both.

Source: CNA/ll(zl)
Advertisement

Also worth reading

Advertisement